Máy hơi nước James Watt là bước ngoặt vĩ đại của lịch sử nhân loại. Tìm hiểu nguyên lý hoạt động máy hơi nước James Watt giúp chúng ta hiểu rõ tại sao máy hơi nước James Watt thay đổi thế giới và thúc đẩy cách mạng công nghiệp Anh phát triển thần tốc.
Ý nghĩa và cải tiến máy hơi nước James Watt so với Newcomen
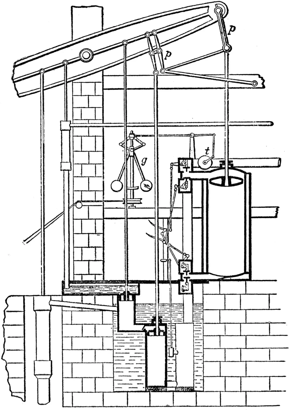
Sự cải tiến máy hơi nước James Watt so với Newcomen nằm ở bộ ngưng tụ riêng biệt, giúp máy hơi nước James Watt tiết kiệm nhiên liệu thế nào so với các phiên bản cũ.
Phát minh này không chỉ nâng cao hiệu suất mà còn tạo ra đơn vị mã lực nổi tiếng. Qua sơ đồ máy hơi nước James Watt lớp 8, người học dễ dàng thấy được cấu tạo chi tiết máy hơi nước James Watt gồm xilanh, piston và van điều khiển, tạo nên nền tảng cho máy hơi nước James Watt dùng cho tàu hỏa sau này.

Bộ sưu tập hình ảnh máy hơi nước James Watt và cách mạng công nghiệp
Những hình ảnh về máy hơi nước James Watt và sự phát triển giao thông minh chứng cho sức mạnh của hơi nước trong việc vận hành máy móc.
Từ ứng dụng máy hơi nước James Watt trong dệt may đến các bản vẽ kỹ thuật máy hơi nước James Watt phức tạp, tất cả đều được lưu giữ tại bảo tàng trưng bày máy hơi nước James Watt.
Mô hình máy hơi nước James Watt tự chế ngày nay vẫn giúp thế hệ trẻ khám phá lịch sử ra đời máy hơi nước James Watt và cuộc đời James Watt vĩ đại.
















>>> Một số hình ảnh khác: Cách mạng công nghiệp thế giới - Từ thế giới thủ công đến thế giới máy móc
Tác động máy hơi nước James Watt đến công nghiệp là vô cùng to lớn, thay đổi hoàn toàn phương thức sản xuất thủ công. Hãy tham khảo thêm các bài viết về những phát minh vĩ đại hoặc danh mục lịch sử khoa học để mở rộng kiến thức của bạn.
>>> Đọc nhiều hơn: Cách mạng tháng Hai Nga 1917: Mốc son lịch sử
>>> Đừng bỏ lỡ: Tìm hiểu cuộc khủng hoảng kinh tế thế giới từ năm 1929 đến năm1933